Arhitektonsko rješenje od 21 m² s naglaskom na luksuz, detalj i preciznost





Info
Inspirirani stilom života ljudi koji nose Cartier, Patek Philippe, Vacheron Constantin, Audemars Piguet, Omegu i Rolex, te idejom vremena kao univerzalne inspiracije, oblikovali smo prostor koji utjelovljuje ugodu i profinjenost.
Dizajn trgovine Timeless reinterpretira umjetnost urarstva kroz pažljivo birane materijale: kameni pod, teksturirane zidove, kameni pult, staklenu vitrinu, ogledalni strop i suptilne zelene akcente — sve u samo 21 m².
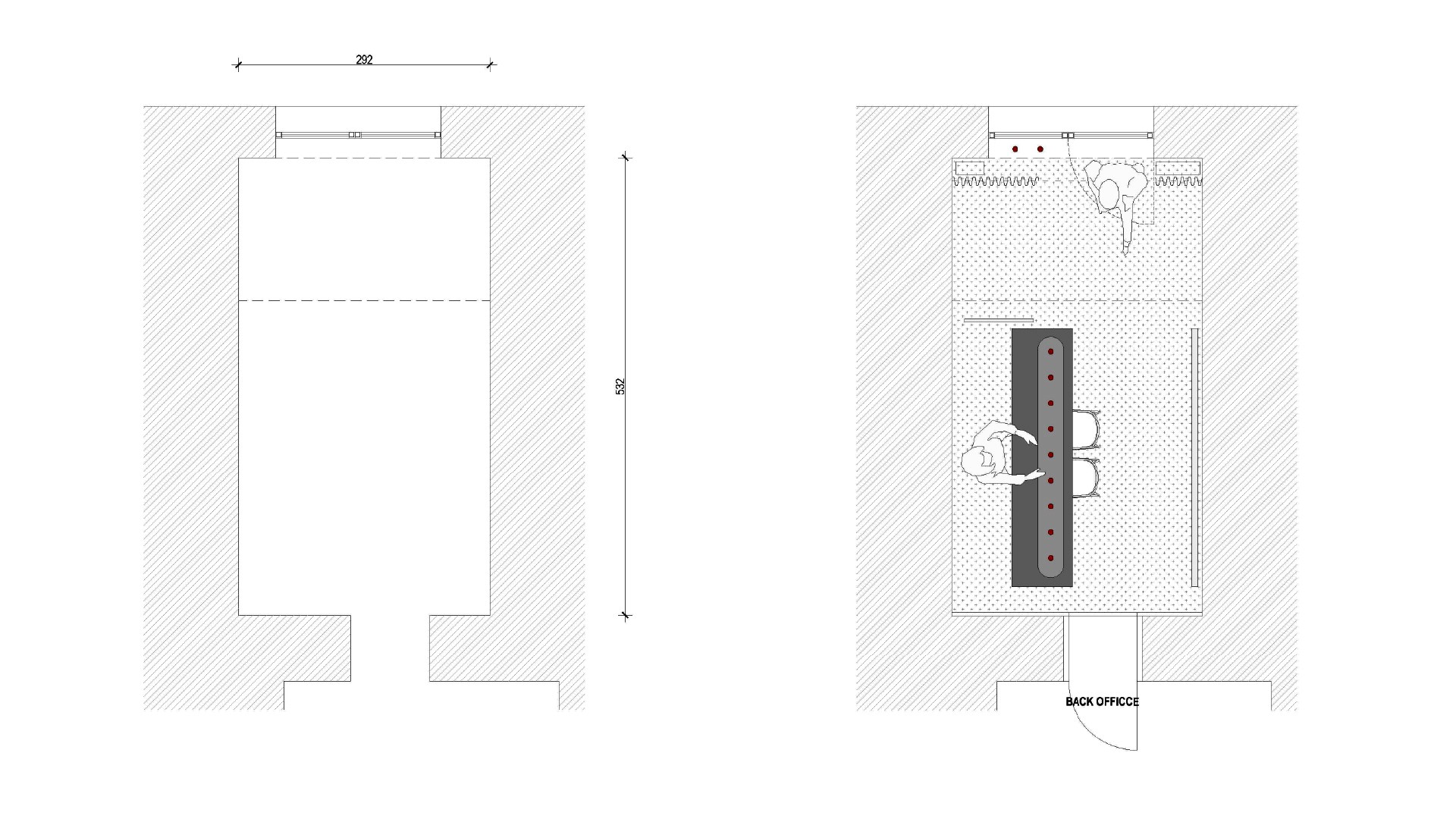
Središnji motiv prostora je staklena vitrina inspirirana krugom kao simbolom vječnosti. Rastegnuti krug (ne elipsa), izveden u visokom sjaju, postaje pozornica za satove vrhunskog dizajna i prestiža.
Na kraju prostora skrivena vrata vode u servisni dio trgovine, mjesto gdje se klasici održavaju i čuvaju za generacije koje dolaze.
Credit
Lokacija:Zagreb, HR
Tipologija: Retail
Klijent: Privatni
Godina projektiranja: 2024
Godina realizacije: 2024
Izradio: Studio Konkreet





